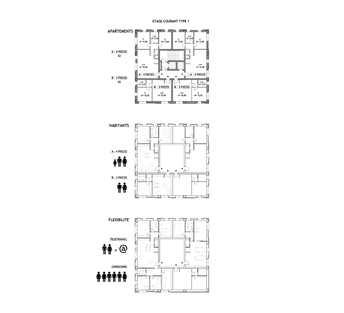
CAROUGE
Genève (CH)
Anno: 2012
Categoria: CONCORSO DI PROGETTAZIONE
Committente: Pubblico
Superficie: 7.860 mq
Importo Lavori: n.d.
Progetto: Matteo Parini (capogruppo), Gilles Berrino, Cesare Ventura
…

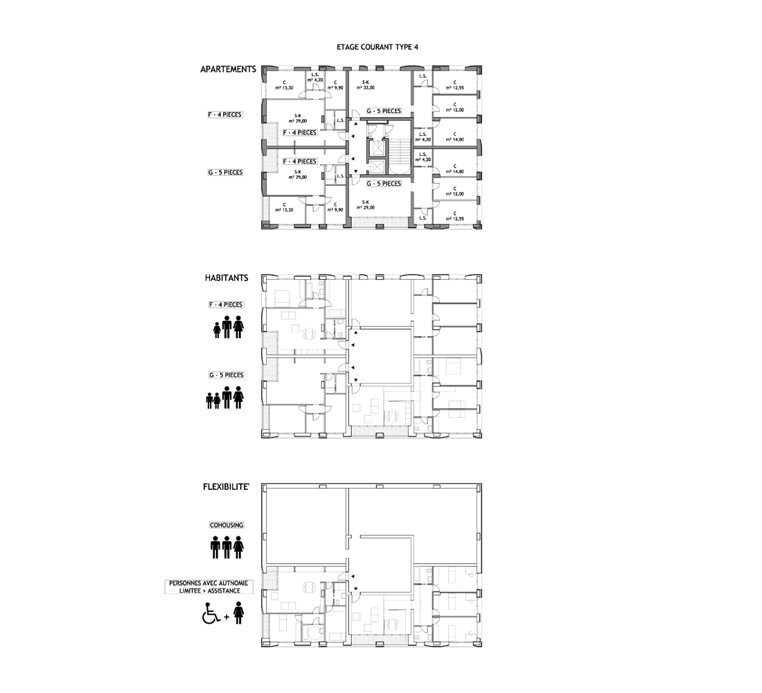
CAROUGE
Genève (CH)
Anno: 2012
Categoria: CONCORSO DI PROGETTAZIONE
Committente: Pubblico
Superficie: 7.860 mq
Importo Lavori: n.d.
Progetto: Matteo Parini (capogruppo), Gilles Berrino, Cesare Ventura
…