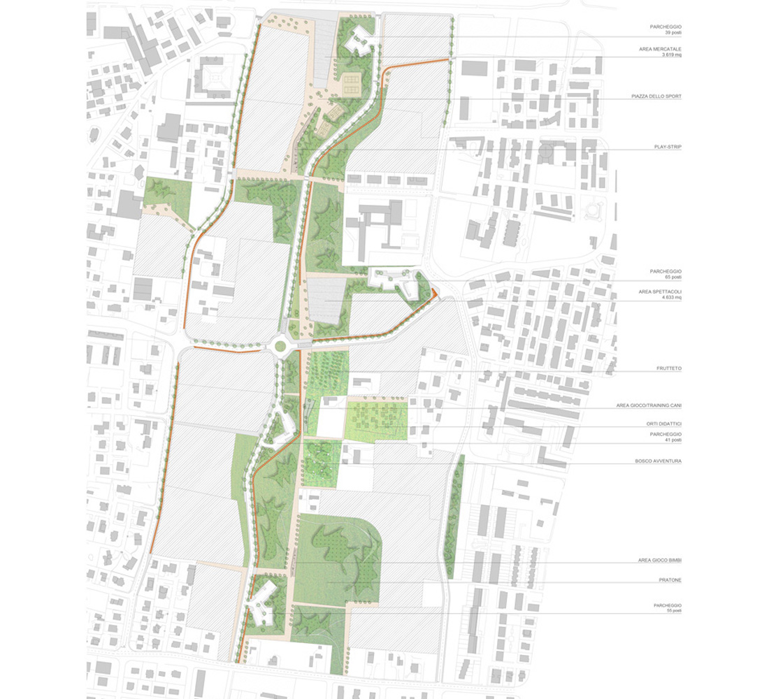
PARCO BARATTA
Voghera (CO)
Anno: 2013
Categoria: CONCORSO DI PROGETTAZIONE A INVITI
Committente: Pubblico
Superficie: 224.000 mq
Importo Lavori: 6.526.000 €
Progetto: Cesare Ventura
…

PARCO BARATTA
Voghera (CO)
Anno: 2013
Categoria: CONCORSO DI PROGETTAZIONE A INVITI
Committente: Pubblico
Superficie: 224.000 mq
Importo Lavori: 6.526.000 €
Progetto: Cesare Ventura
…