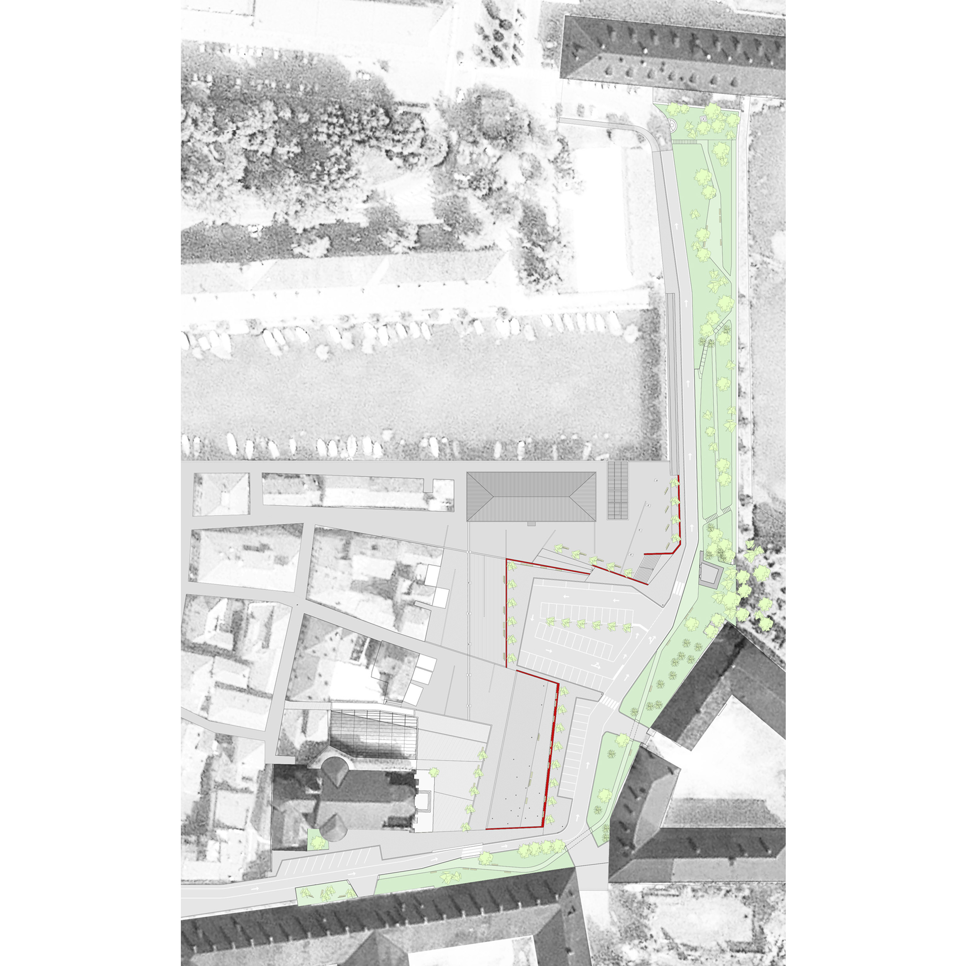
RIQUALIFICAZIONE DI PIAZZA FERDINANDO DI SAVOIA
Peschiera del Garda (BS)
Anno: 2011
Categoria: CONCORSO DI IDEE
Committente: Comune di Peschiera del Garda
Superficie: n.d.
Importo Lavori: n.d.
Progetto: Cesare Ventura (capogruppo), Matteo Parini, Paolo Pelanda, Gilles Berrino, Ruggero Moncada
…










