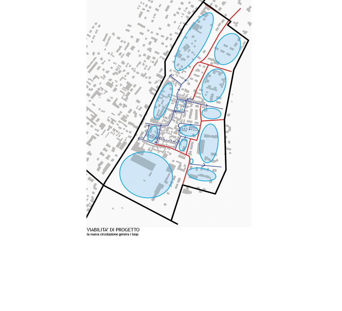
RIQUALIFICAZIONE DI PIAZZA DELLA REPUBBLICA E VIA LEONI
Bernareggio (MB)
Anno: 2011/2013
Categoria: CONCORSO DI PROGETTAZIONE – AMBITO 1 – PRIMO PREMIO
Committente: Comune di Bernareggio
Superficie: 2.570 mq
Importo Lavori: 517.000 €
Progetto: Cesare Ventura (capogruppo), Gilles Berrino, Ruggero Moncada, Matteo Parini, Paolo Pelanda
Photo credits: Nanni Fontana





















































