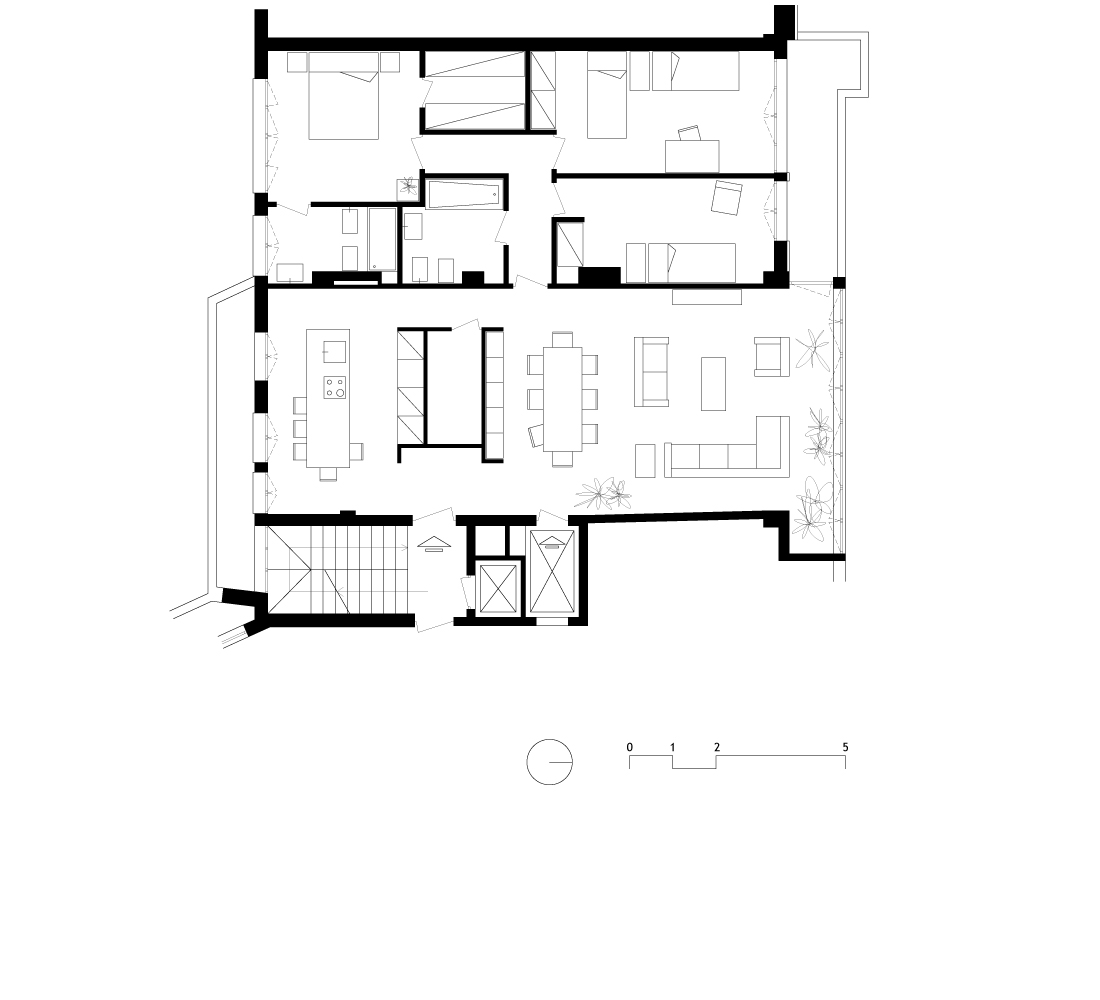
APPARTAMENTO_01
Milano
Anno: 2014/2015
Categoria: ARCHITETTURA
Committente: Privato
Superficie: 130 mq s.u.
Progetto: Cesare Ventura
…

APPARTAMENTO_01
Milano
Anno: 2014/2015
Categoria: ARCHITETTURA
Committente: Privato
Superficie: 130 mq s.u.
Progetto: Cesare Ventura
…